设为首页
|
加入收藏
预估游客人数:
人
人
人
首页
走进文旅
公司简介
组织架构
品牌项目
文化旅游产业
养生养老产业
文旅资讯
行业资讯
项目动态
景点聚焦
旅游常识
文化创意
木文化产品
茶文化产品
商务合作
人才招聘
联系我们
行业资讯
您当前的位置:
主页
>
文旅资讯
>
行业资讯
>
感受原始木屋的气息——落日木屋
作者: admin
来源:admin
住宅嵌在一个南侧海岸边,一间房的卧室木屋简单但精致,使人感受到原始木屋的气息,人们希望一个远离尘世的木屋,在这里他能享受美好的周围景色,观看美丽的日落。
这个轻的由绝缘玻璃组成的木屋在三侧被松木板固定,绿色的屋顶上种植着景天属植物和其他药草,远远地给人们带来新意。
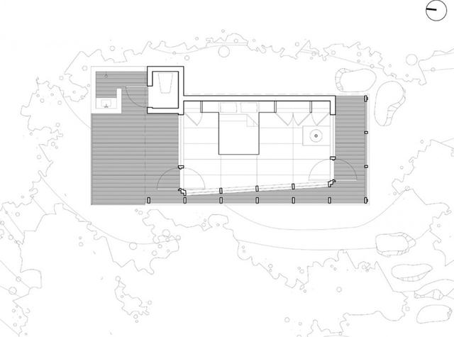
简单的家具包括一个带有内置柜子的床,一墙的橱柜和一个烧柴的火炉。所有的室内空间,包括地板和天花板都是由桦木胶合板做成。
平面图
位置平面图
西立面图
关于我们
|
人才招聘
|
商务合作
|
联系我们
|
网站地图
粤ICP备17058261号
粤公网安备 44030602002486号
版权所有:深圳宝德盛文化旅游开发有限公司 CopyRight(C) 2017-2018 All Right Reserved.